micro to macro

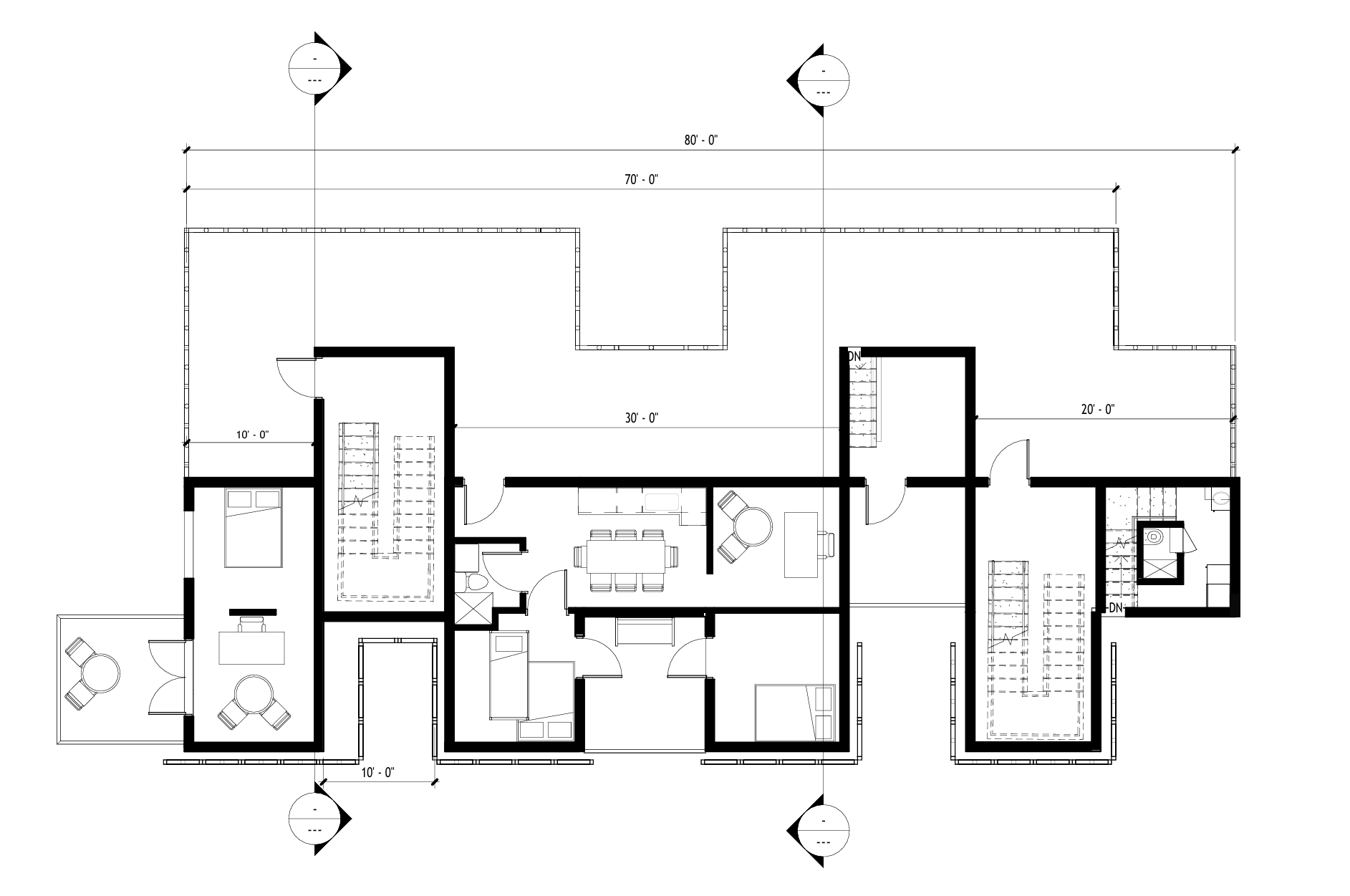
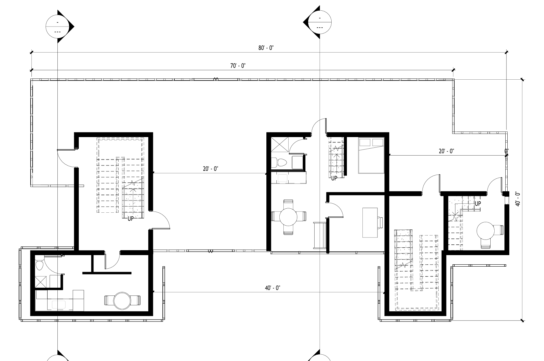
This project moves from the scale of the individual to the collective, beginning with a single microunit designed for a specific client and expanding into a cohesive residential community. By assembling these distinct units into a unified architectural system, the work demonstrates how personal narratives and spatial decisions can aggregate into a meaningful, interconnected whole.

Previous
Previous

cairnes community center

Next
Next

los lazos "the ties"